ART 3 sample 1
RE-IMAGINING LIFE
IN THE COUNTRY
The story behind the house
Breaking with traditional expectations, this post-and-beam HUF house is a new take on the country home. Sleek and elegant, this ebony-coloured home enjoys unrestricted views of the German Westerwald forest. Reflecting the couple’s wishes, the layout symmetrically divides the room space into two equal halves via a central axis.
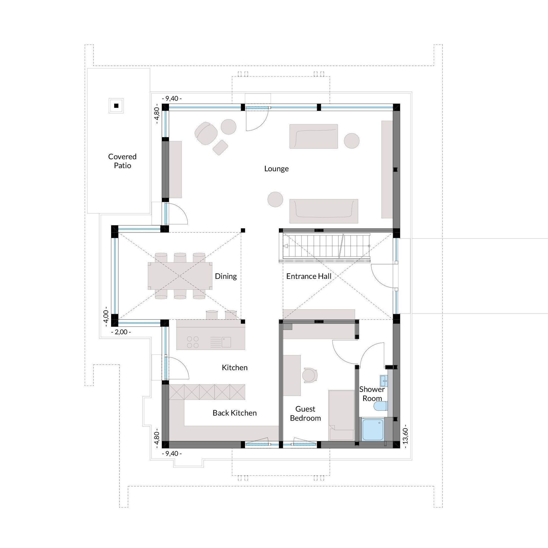
The south wing of the first floor offers generous space for a library and an expansive dressing room; the master bedroom and wellness bathroom are located in the north wing. The ground floor is a harmonious combination of kitchen, dining and living space.
More details about the house

Focused on the essential
Openness in home style and lifestyle
The owners’ favourite place is the dining area, with its impressive ceiling height that reaches up into the roof ridge. When friends and family
gather around the long wooden dining table, there is an atmosphere of effortless hospitality. Their meals together are accompanied by the atmospheric sunlight,
which transitions to a subtly arranged LED lighting concept as the sun goes down.
The LEDs also provide entertaining light displays in the surrounding garden area, viewable from the living room through the floor-length glass.
The lighting feature is controlled via a KNX BUS system, as is all the other house technology.
Other project samples








































