ART 6 sample 8
Trip into the green
The story behind the house
Vibrant hues of green from the surrounding landscape create a wonderfully warm contrast against the white post-and-beam Home, further enhanced by the striking characteristic split roof HUF HAUS design.
The Homes partially glazed Basement is a wonderful retreat of calm.
Complete with a Spa, Sauna, Fitness area and additional Bedroom, as well as Storage and the Homes Plant/Utility Room, the Basement plays ideal host to the both the Homes luxury facilities and functional amenities, as one.
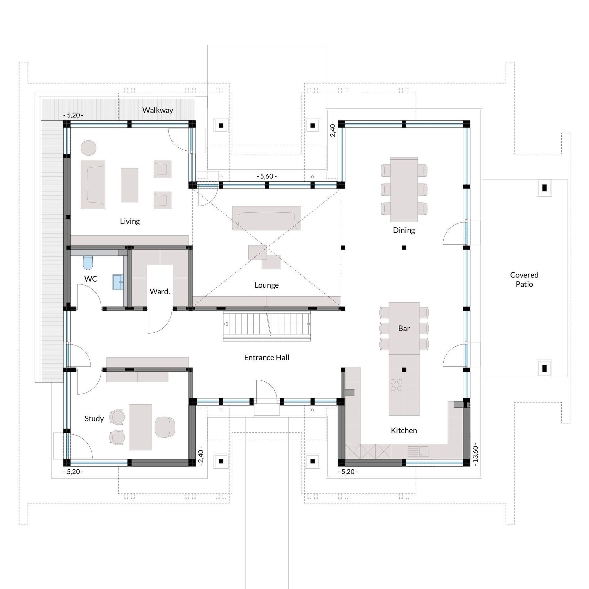
From the Entrance Hall, the Ground Floor opens into the Kitchen and Dining area, Lounge and comfortable Living area with unobstructed grace. A professional Home Office sits on the other side of the Homes entrance – central, yet undisturbed.
The sumptuous Master Bedroom Suite on the First Floor comprises of a luxurious Dressing Area and Bathroom for extreme pampering. Two comfortable Bedrooms lie on the other wing of the house, where a peaceful night’s sleep awaits.
Resting proudly in this tranquil setting, this HUF House embraces nature in the heart of the city.
More details about the house

A passion for the outdoors
Just another day in paradise
Outside the house there is a charming and spacious living space, where the inviting terrace lounge, with its canopy and wooden decking, invites Daytime Siestas and Weekend Fiestas!
A dip in the cool blue pool is a well-deserved reward and refreshment after a hard day’s work.
Other project samples

























