MODUM 6 sample 1
CITY LIVING
NESTLED IN NATURE
The story behind the house
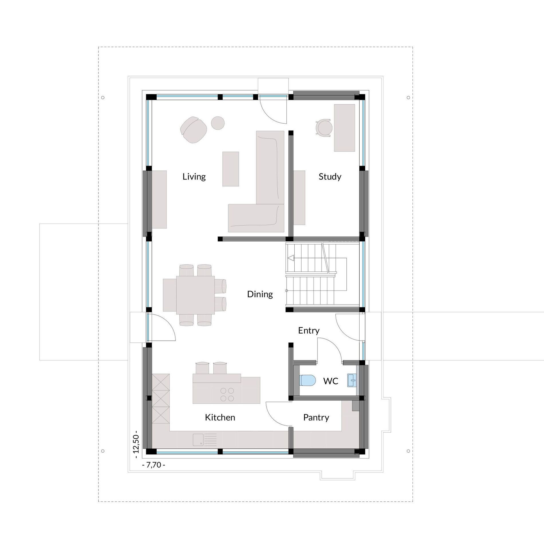
This family home is distinguished by the light that flows through the house, allowing for an unobstructed view from the front door to the private garden oasis.
Two adjacent sliding doors span the width of five metres to open up the house to the outdoor terrace which functions as an extension of the living space.
The house makes the best possible use of the available space with built-in closets and cupboards.
More details about the house

Prime time. All the time.
Architectural finesse
One of the house’s most striking characteristics is the light axis that leads from the front door towards the garden – an ingenious architectural feature.
A fireplace wall partitioning the living and dining areas splits up the living spaces with visual flair, without creating any sense of confined space.
Chateau plank flooring is used throughout the entire house, with an uneven surface that is pleasant to the touch.
The kitchen island and worktops are made of concrete. Apart from this, there is plenty of glass: typical HUF.
Interview with the owners
Where did you live before, and in what kind of house?
We used to live in a penthouse apartment in an art nouveau villa, which was also located in Berlin-Zehlendorf.
How would you describe your house’s interior furnishings?
No frills, purist, minimalist.
Can you think of a particular piece of furniture, artwork or the like that you are particularly fond of?
The built-in TV wall fixed between two wooden posts that partitions the living space! The television is mounted on one side, and can be concealed behind a large picture as required, and the other side of the wall is a bookcase.
Do you have a favourite spot?
I have several! The bar stool by the kitchen island, the terrace and the large ground-level “shower cave” in the master bathroom that looks like a tunnel until you peer around the corner.
Do you have any anecdotes that you can tell us involving the house?
A few days after we had moved in, one of our sons asked when we were going home. When he was told that this was his new home, he just laughed and said, “Rubbish, this isn’t our home. This is the building site.”
How would you describe the concept behind the garden design?
We both like greenery and are not such big fans of brightly coloured flowers. This means that even the garden has quite a purist feel, with many different types of bamboo, grasses, etc. As the plot is rather compact compared with the plots of other HUF houses, we placed tall plants along the plot borders to provide plenty of privacy. The children also have a play area, which is of course furnished with football goals.
Do you spend a lot of time outdoors?
Yes, in summer we have barbecues or drink a glass of wine on the terrace. When both terrace doors are open, you feel like you’re in the garden anyway even in the kitchen or dining area. In winter we enjoy the full glazing in front of the garden, which also makes you feel like you’re practically sitting outdoors.
Other project samples




















